• Klant: ‘s Heeren Loo Zorggroep
  • Locatie: Apeldoorn, Nederland
  • Jaar: 2015-heden

Groot Schuylenburg – ’s Heeren Loo zorggroep

Apeldoorn, Nederland - “Samen zorgdragen voor een goed leven voor mensen met een beperking”, dat is de doelstelling van ‘s Heeren Loo Zorggroep. Sommige mensen met een verstandelijke beperking voelen zich het best thuis in een beschermde omgeving. Met rust, structuur en de drukte van de maatschappij op een afstand. ‘s Heeren Loo Zorggroep biedt deze mensen woonmogelijkheden op prachtig gelegen, beschutte terreinen zoals landgoed Groot Schuylenburg in Apeldoorn waarbij dagbesteding, sport en medische hulp dichtbij zijn.

Projectgegevens

LocatieApeldoorn, Nederland
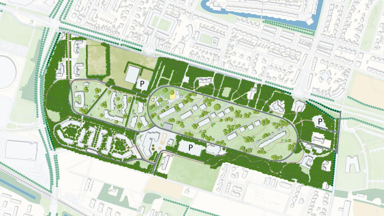
OpdrachtMasterplan, ontwikkelstrategie, ontwerp van diverse tuinen
Ontwerp2015-heden
Klant‘s Heeren Loo Zorggroep
TeamLeonieke Heldens, Sjaak Punt
Groot Schuylenburg – ’s Heeren Loo zorggroep
Groot Schuylenburg – ’s Heeren Loo zorggroep

Door veranderende wensen en eisen ten aanzien van de zorg is het landgoed constant in ontwikkeling. Bestaande gebouwen worden gesloopt, nieuwe gebouwen worden gebouwd en historische gebouwen worden gerenoveerd. De zorg heeft, met al zijn wensen en eisen, de groene kwaliteiten van het landgoed afgelopen decennia opgeslokt. Terwijl juist het groen een bijdrage levert aan de gezondheid en het welzijn van de cliënten.

Wij maakten voor Groot Schuylenburg een Ontwikkelingsvisie 2040 welke aansluit bij de ambitie van Apeldoorn om de groene verbinding tussen de stad en het oostelijk gelegen achterland te beschermen en te verbeteren. Het landgoed is onderdeel van deze groene scheg en een plek waar bewoners, bezoekers en werknemers zich thuis voelen.

Naast het zichtbaar houden van de waardevolle historie ligt de nadruk in de ontwikkelingsvisie op een duidelijke en veilige infrastructuur en de groene beleving van het terrein. Deze beleving wordt vergroot door verschillende sferen te introduceren, passend bij de identiteit van het landgoed. Voorbeelden hiervan zijn een bos met stinzenplanten, een monumentaal bos en parkwonen. Ook komt er een nieuwe entree naast de historische.

Met de ontwikkelingsvisie kan de zorggroep gericht groeien naar een gezonde en duurzame toekomst. Voor zichzelf als organisatie en voor de mensen die wonen en werken op Groot Schuylenburg.