• Klant: CBRE
  • Locatie: Amsterdam
  • Jaar: 2021-2023

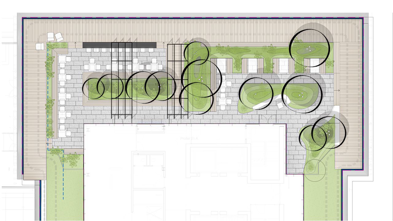
Daktuinen WTC Tower Ten

Amsterdam - Op de Amsterdamse Zuidas is het World Trade Center uitgebreid met een nieuwe toren: Tower Ten, een hoogwaardig gebouw bestaande uit 32.000 vierkante meter kantoorruimte. ARCADIS Landschapsarchitectuur en Stedenbouw ontwierp zeven daktuinen voor Tower Ten - variërend van kleine groene terrassen tot grote tuinen waar gewerkt kan worden of een happy hour plaats kan vinden.

Projectgegevens

LocatieAmsterdam
Ontwerp2021-2023
KlantCBRE
In samenwerking metKoninklijke Ginkel Groep
Copyright afbeeldingenArcadis
Daktuinen WTC Tower Ten
Daktuinen WTC Tower Ten
Daktuinen WTC Tower Ten
Daktuinen WTC Tower Ten

Omdat Arcadis Landschapsarchitectuur en Stedenbouw veel kennis heeft vergaard op het gebied van daktuinen, in verschillende fasen van visie tot technisch uitvoeringsontwerp, vroeg CBRE ons om ze te helpen bij deze uitdagende opgave. Het doel was om ontwerpen te maken die zowel aantrekkelijk als functioneel zijn en die naadloos aansluiten op de hoogwaardige architectuur van Tower Ten en het zakelijke karakter van het WTC.

Enkele van de tuinen werden aangelegd op het dak van de bestaande bebouwing, grenzend aan de nieuwe Tower Ten. Hierbij moest rekening worden gehouden met de beperkte belasting die deze daken konden dragen.

Landschapsarchitect en beplantingsontwerper Leonieke Heldens vertelt: ‘De grootste uitdaging was om op een bestaand gebouw zeer groene daktuinen te ontwikkelen. De oplossing zat in de toepassing van zeer lichte materialen (o.a. in opbouw, substraat, watervoorziening) waardoor er een groene oase tot op de 21e verdieping is ontstaan.’

In het ontwerp hield Arcadis Landschapsarchitectuur en Stedenbouw rekening met zichtlijnen. Zo beleven gebruikers van de daktuinen de ruimten als groene oase met hoogwaardige inrichtingselementen en worden onaantrekkelijke elementen, zoals installaties, aan het zicht onttrokken.
De rail van de gevelonderhoudsinstallatie verdwijnt bijvoorbeeld onder vlonders aan de rand van de daktuinen. Zo kunnen gebruikers hier staan en genieten van het uitzicht en kunnen de vlonders open worden gezet bij gevelonderhoud. De ruimte wordt zo optimaal benut.

Een hoogwaardige collectie van zeven daktuinen, op verschillende niveaus. Variërend in formaat en gebruiksvorm, maar één geheel qua sfeer en materialisering. Het resultaat is klasse, sfeer en kwalitatief volwaardig groen op grote hoogte, en dat alles met een fenomenaal uitzicht over Amsterdam.