• Client: JOIN ontwikkeling
  • Location: Driebergen-Zeist
  • Year: 2011-2019

Office Campus, De Reehorst, Triodos Bank

Driebergen-Zeist - The mission of Triodos Bank is to create a sustainable society. The bank does this by making people aware of the consequences of their economic activity, for other people and the planet. Triodos Bank’s mission is brought to life at the De Reehorst estate. The new sustainable office building is a high-quality addition to the bank’s birthplace. Meanwhile, the De Reehorst estate has gained a strong economic player, allowing it to enter the 21st century.

Project data

LocationDriebergen-Zeist Google Maps
AssignmentDesign sketch, provisional design, final design
Design2011-2018
Construction2017-2019
ClientJOIN ontwikkeling
TeamLeonieke Heldens, Hans Smolenaers, Joep van Baast, Sjaak Punt
In collaboration withRAU architects + Ex Interiors
Office Campus, De Reehorst, Triodos Bank
Office Campus, De Reehorst, Triodos Bank
Office Campus, De Reehorst, Triodos Bank
Office Campus, De Reehorst, Triodos Bank

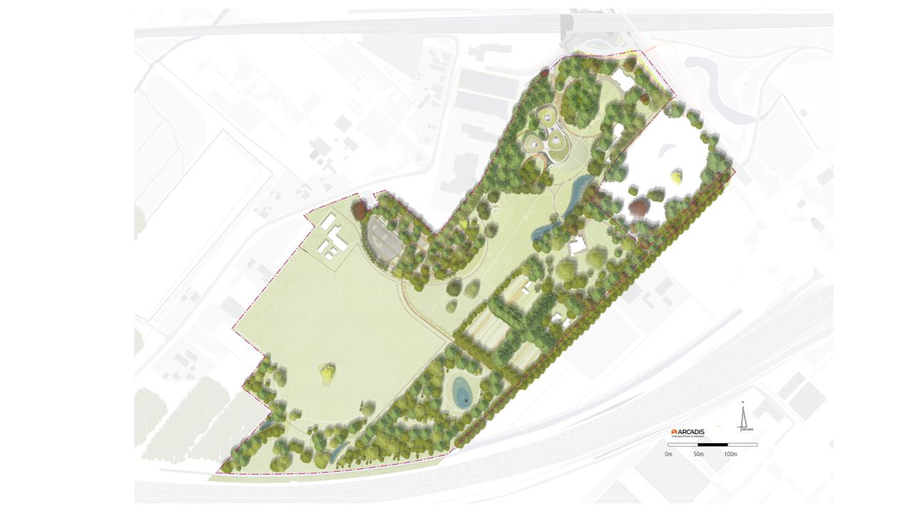
We drew up the ‘De Reehorst principles’, together with Triodos Bank, the De Reehorst Estate Foundation and other local parties. The key principle is that nature, culture and economy should develop in balance with one another. This principle will ensure the estate becomes a place that inspires people, and where they will come into contact with others, art and culture, agriculture and nature. 

The new head office adds a contemporary layer to the landscape at the estate. The placement and shape of the building take the flight paths of bats and the distance to the existing forest edge into account, for example. New groups of trees add to the long views across the estate from the office. Various routes lead visitors past picturesque locations like the amphitheater and the reflecting pool. The estate is made up of a series of intimate spaces around the building, leading to a panoramic view by the A12. 

 The estate and the ground floor of the building, with a restaurant and meeting center, are open to the public. The nature at the site will be boosted by the expansion of the Netherlands Nature Network (NNN), with newly dug ponds, for example. This creates a connection between the Utrecht Hill Ridge and the Kromme Rijn region.

Working together with Triodos Bank, architecture firm Thomas Rau and Interior Architect Odette Ex, we have created a great place to work and spend time. The balance between culture, nature and economy at the De Reehorst estate enriches Triodos Bank’s identity and literally and figuratively connects the bank to its environment.